Video

Kontaktdaten

Jürgen Wegehaupt, WEGEHAUPT Immobilienmakler GmbH

Ausstattung / Merkmale

  • ✓ Abstellraum
  • ✓ Außenstellplatz
  • ✓ Balkon
  • ✓ Barrierefrei
  • ✓ Denkmalgeschützt
  • ✓ Einbauküche
  • ✓ Fliesenboden
  • ✓ Garten/Gartennutzung
  • ✓ Gäste-WC
  • ✓ Keller
  • ✓ Loggia
  • ✓ Parkettboden
  • ✓ Personenaufzug
  • ✓ Pissoir
  • ✓ Tageslichtbad
  • ✓ Teppichboden
  • ✓ Terrasse

Energieausweis

  • Energieausweis
    nicht erforderlich

Objektdaten

  • Objekt-ID
    M 1498 - ehemalige Schule
  • Objekttyp
    Büro/Praxis
  • Adresse
    06449 Aschersleben
    Sachsen-Anhalt
  • Etagen im Haus
    4
  • Bürofläche ca.
    805 m²
  • Grund­stück ca.
    1.062 m²
  • Zimmer
    14
  • Badezimmer
    4
  • Loggien
    1
  • Balkone
    3
  • Terrassen
    1
  • Küche
    Einbauküche
  • Wesentlicher Energieträger
    Gas
  • Baujahr
    1898
  • Letzte Modernisierung
    2010
  • Zustand
    vollsaniert
  • Ausstattung
    gehoben
  • Außen­stellplätze
    12
  • Verfügbar ab
    Sommer 2026
  • Käufer­provision
    7,14 % (inkl. MwSt.) vom Kaufpreis
    Die Käuferprovision in Höhe von 7,14 % vom Kaufpreis (inkl. MwSt.) ist mit Abschluss des vermittelten notariellen Kaufvertrages verdient und fällig.
  • Kaufpreis
    699.999 EUR

Objekt­beschreibung

Beschreibung

Sie suchen einen Standort, der Ihre Leistungen und Ihr Unternehmen repräsentiert?
Diese prachtvolle Stadtvilla aus dem späten 19. Jahrhundert ist weit mehr als ein Gebäude, sie ist ein Statement!
Mit ihrer imposanten Fassade, den kunstvollen Stuckelementen, Rundbogenfenstern und filigranen Bleiglasarbeiten bietet sie den idealen Rahmen für anspruchsvolle Gewerbetreibende, die Wert auf Stil, Wirkung und Substanz legen.

Die denkmalgeschützte Villa wurde 2010 umfassend und mit viel Liebe zum Detail saniert. Dabei blieb der historische Charakter bewusst erhalten, während zeitgemäße Standards und Funktionalität integriert wurden. Hochwertige Materialien, klare Raumstrukturen und eine beeindruckende architektonische Handschrift schaffen eine Atmosphäre, die Geschichte und Moderne vereint.

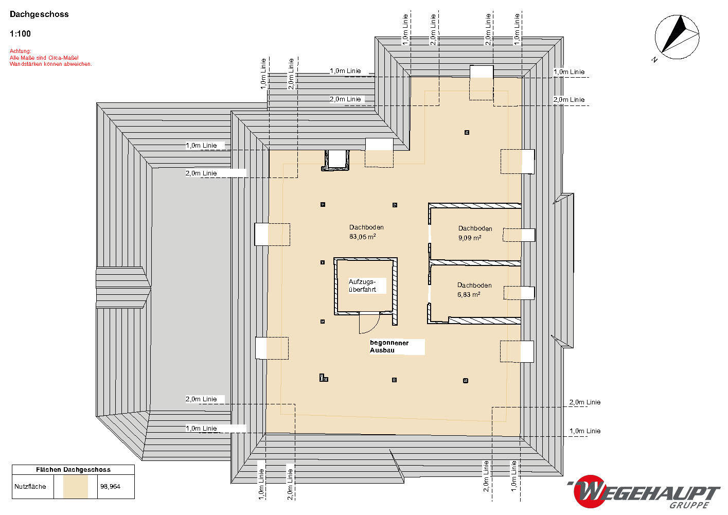
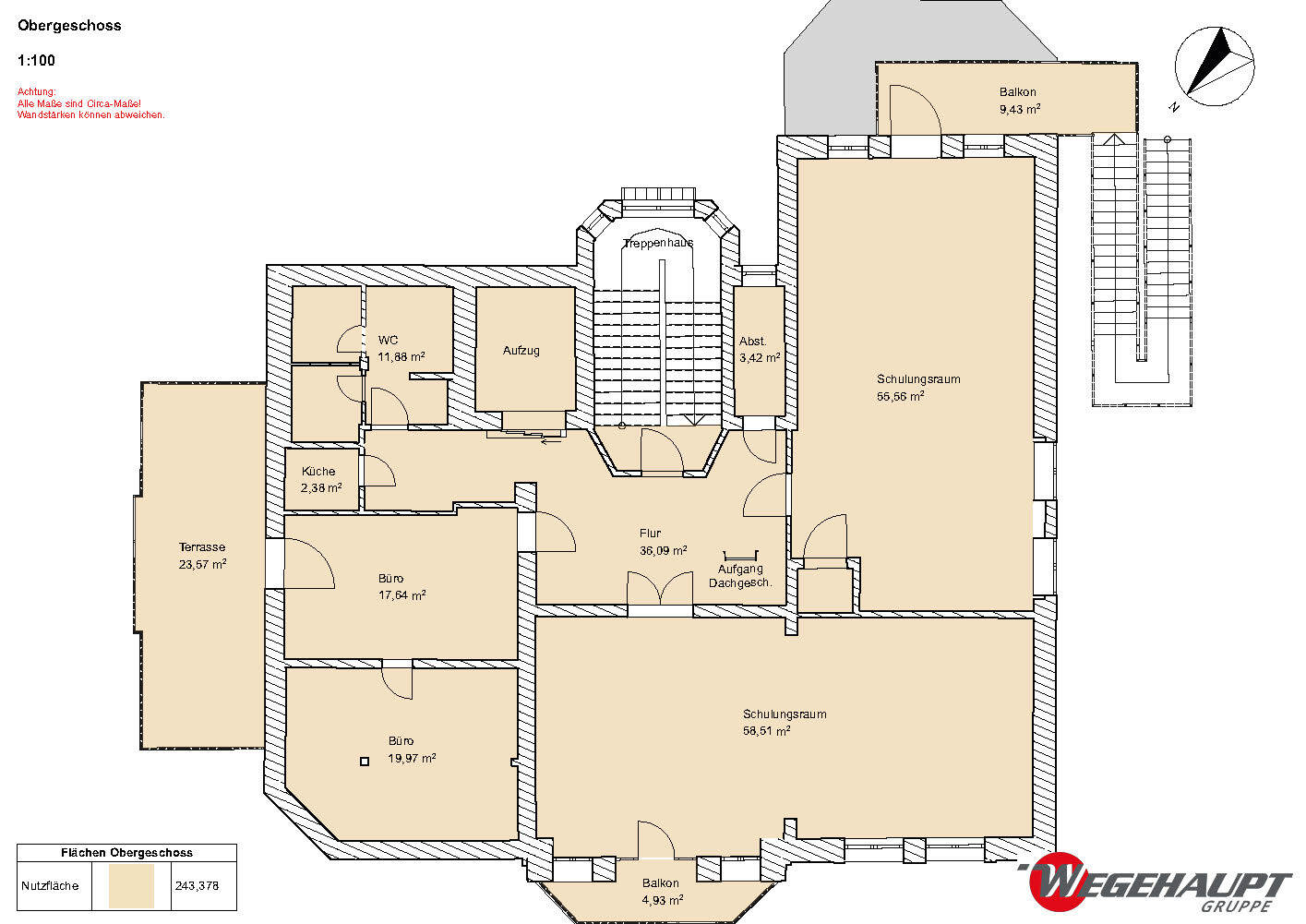
Über drei großzügige Etagen erstrecken sich mehr als 680 m² Nutzfläche, lichtdurchflutet, flexibel und inspirierend. Die Räume lassen sich unterschiedlich gestalten: als Einzelbüros, offene Arbeitsbereiche, Seminarräume oder Repräsentationsflächen. Ergänzt wird das Ensemble durch eine vorbereitete Ausbaureserve im Dachgeschoss, die weiteres Potenzial für Wachstum bietet.

Das Herzstück des Hauses bildet das eindrucksvolle Treppenhaus mit seinem kunstvoll geschnitzten Holzgeländer und den prachtvollen Bleiglasfenstern, ein architektonisches Meisterwerk, das jedem Besucher sofort in Erinnerung bleibt. Diese Villa ist kein anonymer Zweckbau, sondern ein Ort, der Werte ausstrahlt: Beständigkeit, Stil und Vertrauen.

Das großzügige Grundstück mit gepflasterter Zufahrt, historischem Tor und mehreren Stellplätzen rundet das Gesamtbild ab. Ein Objekt, das nicht nur Raum bietet, sondern Identität schafft.

Ausstattung

Die Villa überzeugt nicht nur durch ihre eindrucksvolle Erscheinung, sondern ebenso durch ihre durchdachte Funktionalität,
die historische Substanz mit moderner Nutzbarkeit vereint:

SANIERUNG & ERHALTUNGSZUSTAND:

  • Umfassende, denkmalgerechte Sanierung im Jahr 2010
  • Elektrik, Leitungen, Sanitär- und Innenausbau vollständig erneuert
  • Laufend gepflegt, keine Sanierungsrückstände

RAUMSTRUKTUR & NUTZUNG:

  • Vier Etagen mit insgesamt rund 805 m² Nutzfläche
  • Ausbaureserve im Dachgeschoss (ca. 99 m², Ausbau vorbereitet)
  • Flexible Grundrisse: ideal für Büros, Kanzleien, Praxen, Schulungsräume oder Co-Working
  • Mehrfach nutzbare Etagen, auch teilbar –> optimal für gemischte Nutzungskonzepte

BARRIEREFREIHEIT & KOMFORT:

  • Fahrstuhl mit Außenzugang, barrierefrei und behindertengerecht
  • Behinderten-WC vorhanden
  • Moderne WC-Anlagen auf mehreren Etagen

TECHNIK:

  • IT- und Strominfrastruktur vorbereitet, strukturierte Verkabelung vorhanden
  • Elektrik, Leitungen, Sanitär- und Innenausbau vollständig erneue
  • Gaszentralheizung (Baujahr 2000), regelmäßig gewartet

ARCHITEKTUR & DETAILS:

  • Originale Kassettentüren, Bleiglasfenster und kunstvoll geschnitztes Holzgeländer
  • Historische Stuckelemente und stilgerechte Farbgebung
  • Repräsentativer Eingangsbereich mit historischem Tor und schmiedeeisernen Details
  • Zwei repräsentative Haupteingänge (Straßenseite & Allee)
  • Notausgang und Balkone im Obergeschoss
  • Großzügige Deckenhöhen und lichtdurchflutete Räume mit historischem Charme

GRUNDSTÜCK & AUßENBEREICH:

  • Gepflegtes, 1062 m² großes Grundstück mit gepflasterter Zufahrt
  • Mehrere PKW-Stellplätze direkt am Haus

Aktuell als Bildungseinrichtung genutzt, Übergabe ab Sommer 2026 möglich!

Sonstiges

Alle Angaben basieren auf Aussagen Dritter, der vorhandenen Unterlagen sowie einer Objektbesichtigung. Eine Gewähr für die Richtigkeit und Vollständigkeit kann daher nicht übernommen werden. Dieses Exposé möchten Sie bitte als freibleibendes unverbindliches Angebot betrachten.
ACHTUNG: Bitte haben Sie Verständnis, dass wir nur vollständige Anfragen mit Angabe Ihres Namens, Ihrer Anschrift, Ihrer Tel.-Nummer und vollständiger und richtiger E-Mail Adresse bearbeiten können. Anfragen mit falschen Daten werden von uns nicht beantwortet.
ACHTUNG, wir haben ein Grobaufmaß gemacht, die m² können geringfügig abweichen!

Lage

Die Villa befindet sich in der besten innerstädtischen Lagen Ascherslebens, an einer repräsentativen, von alten Bäumen gesäumten Allee. Das Umfeld ist geprägt von stilvollen Gründerzeitbauten, gepflegten Vorgärten und einer ruhigen, zugleich zentralen Atmosphäre, die sich ideal für ein gehobenes Gewerbeumfeld eignet.

Die Innenstadt mit ihren Geschäften, Restaurants, Ämtern und Dienstleistern ist in wenigen Gehminuten erreichbar. Auch der Bahnhof sowie öffentliche Verkehrsmittel liegen in bequemer Nähe, ein klarer Vorteil für Mitarbeiter, Kunden und Besucher. Über die B 6 und A 36 ist Aschersleben zudem hervorragend an Magdeburg, Halle und das Harzgebiet angebunden, also ein zentraler Standort mit regionaler Strahlkraft.

Durch die exponierte Position an einer gut frequentierten Straße genießt die Villa eine hervorragende Sichtbarkeit, ein Standort, der Präsenz zeigt und Professionalität ausstrahlt. Die Kombination aus historischer Architektur, stadtnaher Lage und optimaler Erreichbarkeit macht dieses Objekt zu einer der attraktivsten Gewerbeadressen der Region.

Mehrere eigene PKW-Stellplätze direkt am Haus sowie weitere öffentliche Parkmöglichkeiten im Umfeld sorgen zusätzlich für komfortable Bedingungen im täglichen Betrieb.

Flughafen 15,78 km | Fernbahnhof 4,41 km | Bus 820 m 

Sie sehen gerade einen Platzhalterinhalt von Google Maps. Um auf den eigentlichen Inhalt zuzugreifen, klicken Sie auf die Schaltfläche unten. Bitte beachten Sie, dass dabei Daten an Drittanbieter weitergegeben werden.

Mehr Informationen

Direktanfrage

* Pflichtangaben
 SSL-verschlüsselt
Immobiliendaten-Import und Darstellung für WordPress: WP-ImmoMakler